︎
ARCHITEKTI
BKPŠ
KUSÝ — PAŇÁK
work
|
about
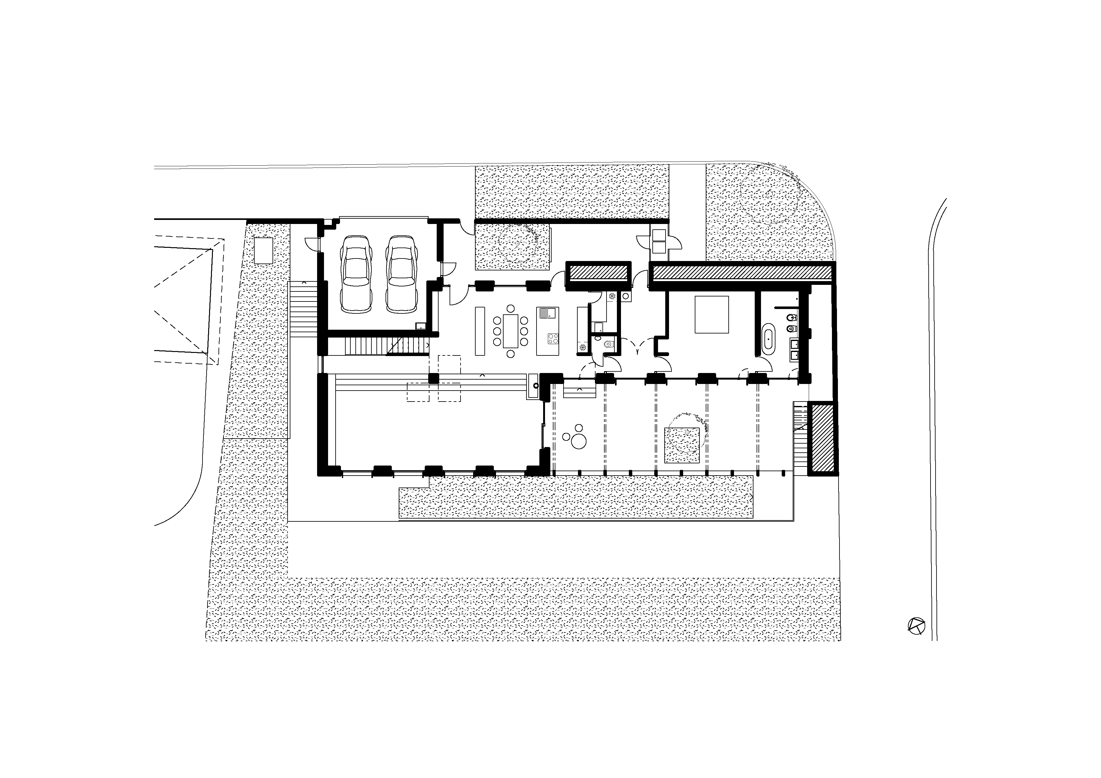
Vila E
Bratislava
realizácia 2012
nominácia na cenu ARCH2020
Kusý II, Paňák, Paňáková J.
︎
︎
︎
© 2023 BKPŠ
Running on Cargo