︎
ARCHITEKTI
BKPŠ
KUSÝ — PAŇÁK
work
|
about
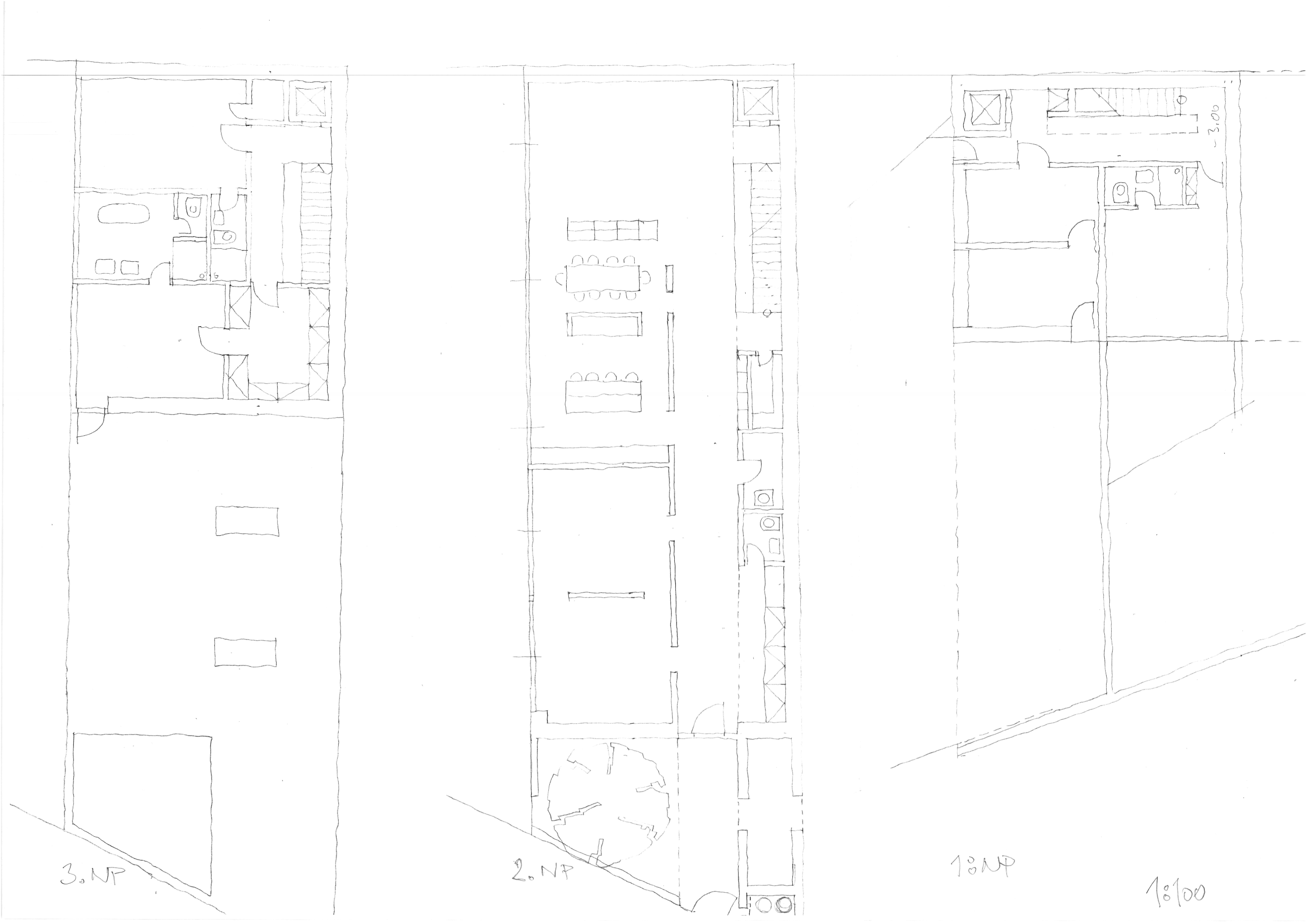
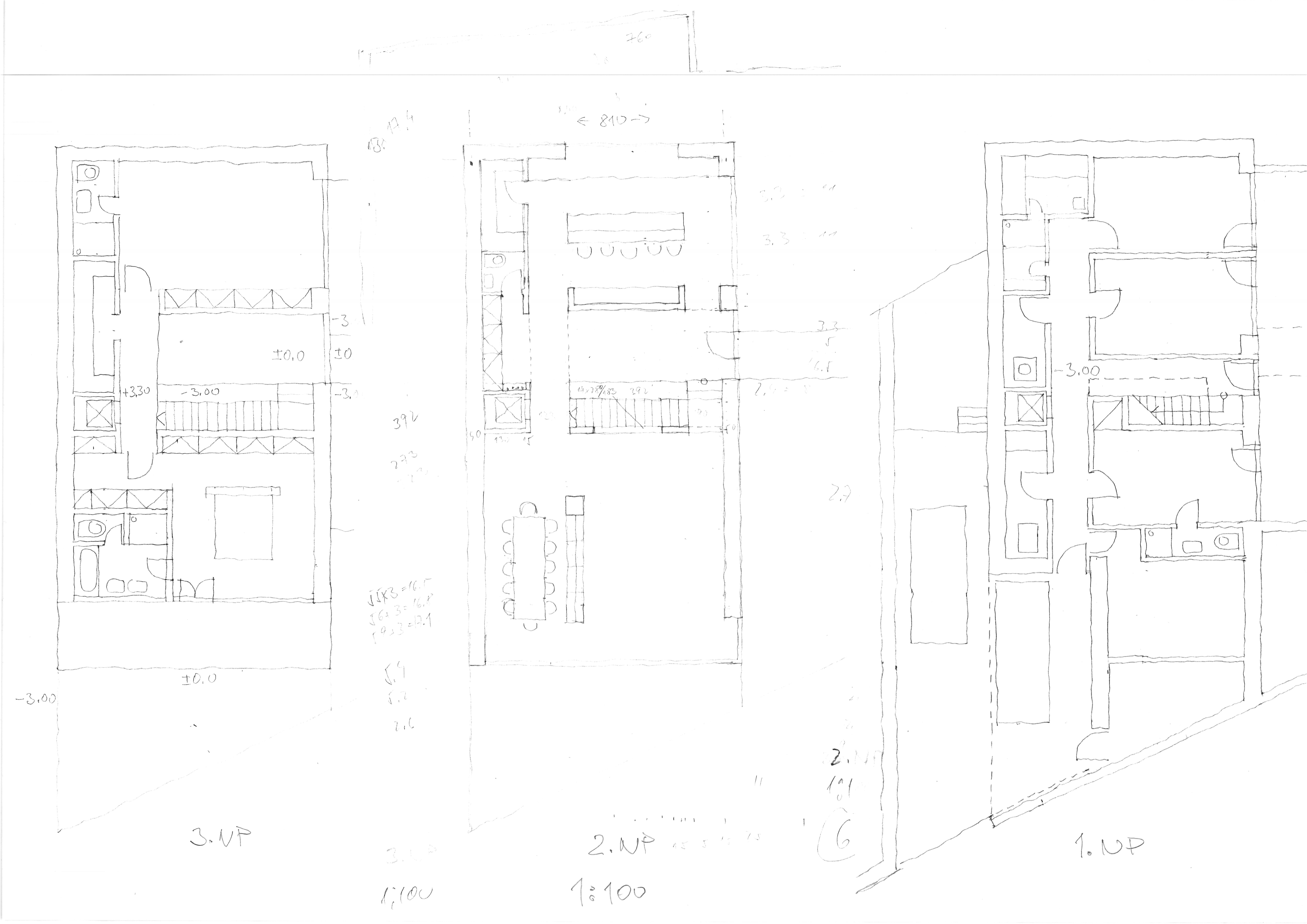
Vila
Bratislava
štúdia, 2013
Kusý II, Paňák, Kusý III
︎
︎
︎
© 2023 BKPŠ
Running on Cargo