︎
ARCHITEKTI
BKPŠ
KUSÝ — PAŇÁK
work
|
about
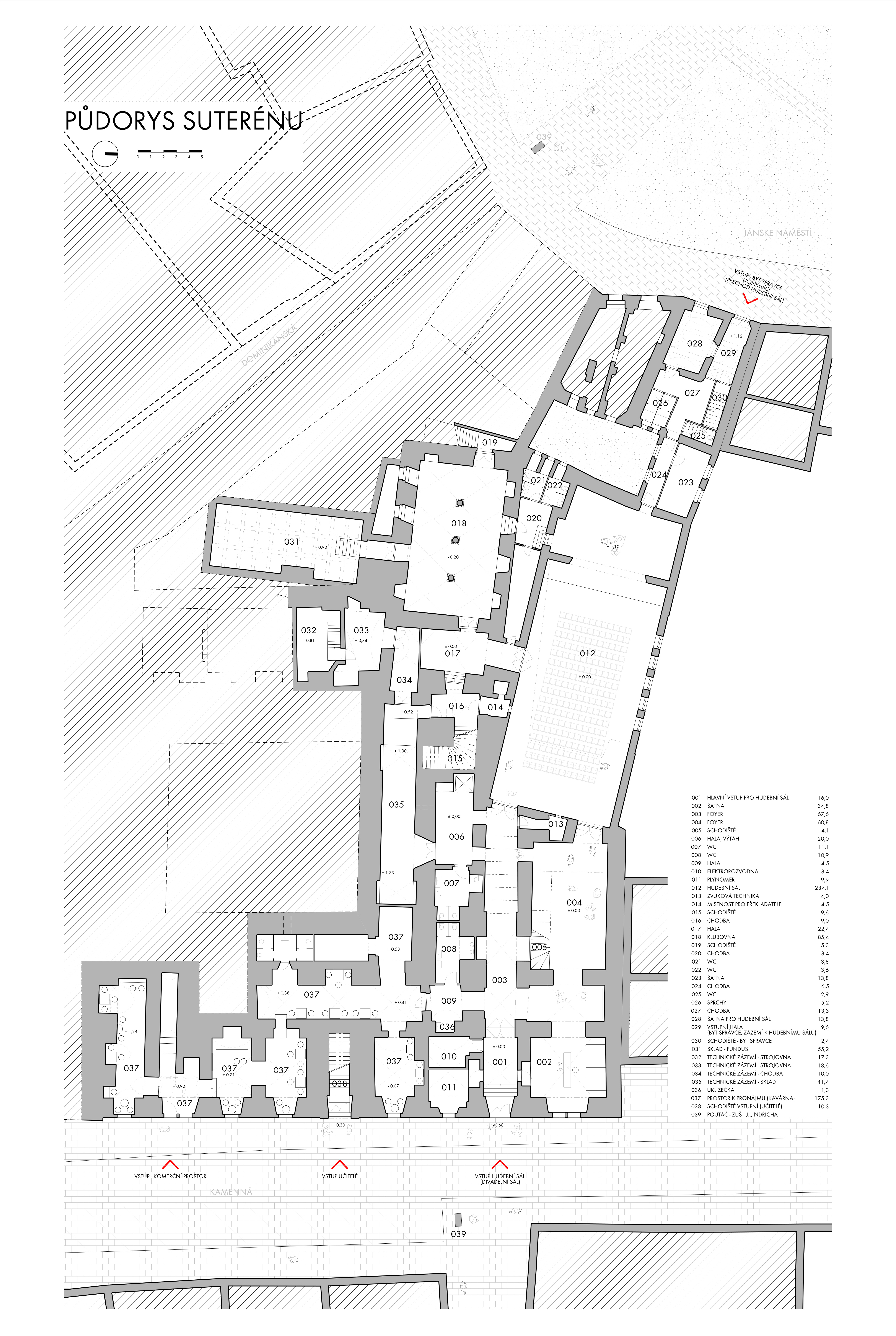
Revitalizace Dominikánského kláštera
Cheb
súťaž, 2014
Kusý III, Bakyta, Kusá-Michalič, Paňáková B., Vargic
︎
︎
︎
© 2023 BKPŠ
Running on Cargo