︎
ARCHITEKTI
BKPŠ
KUSÝ — PAŇÁK
work
|
about
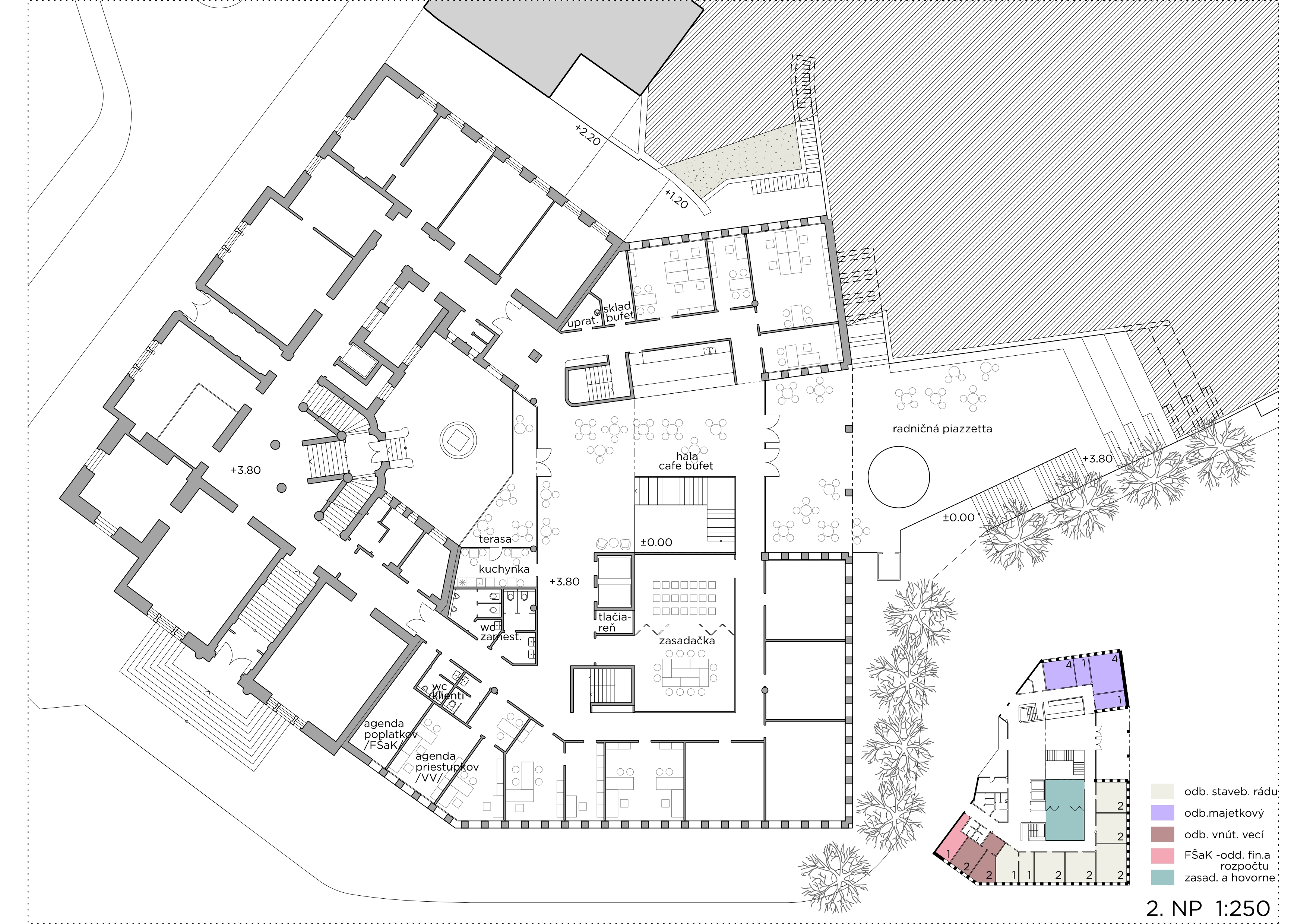
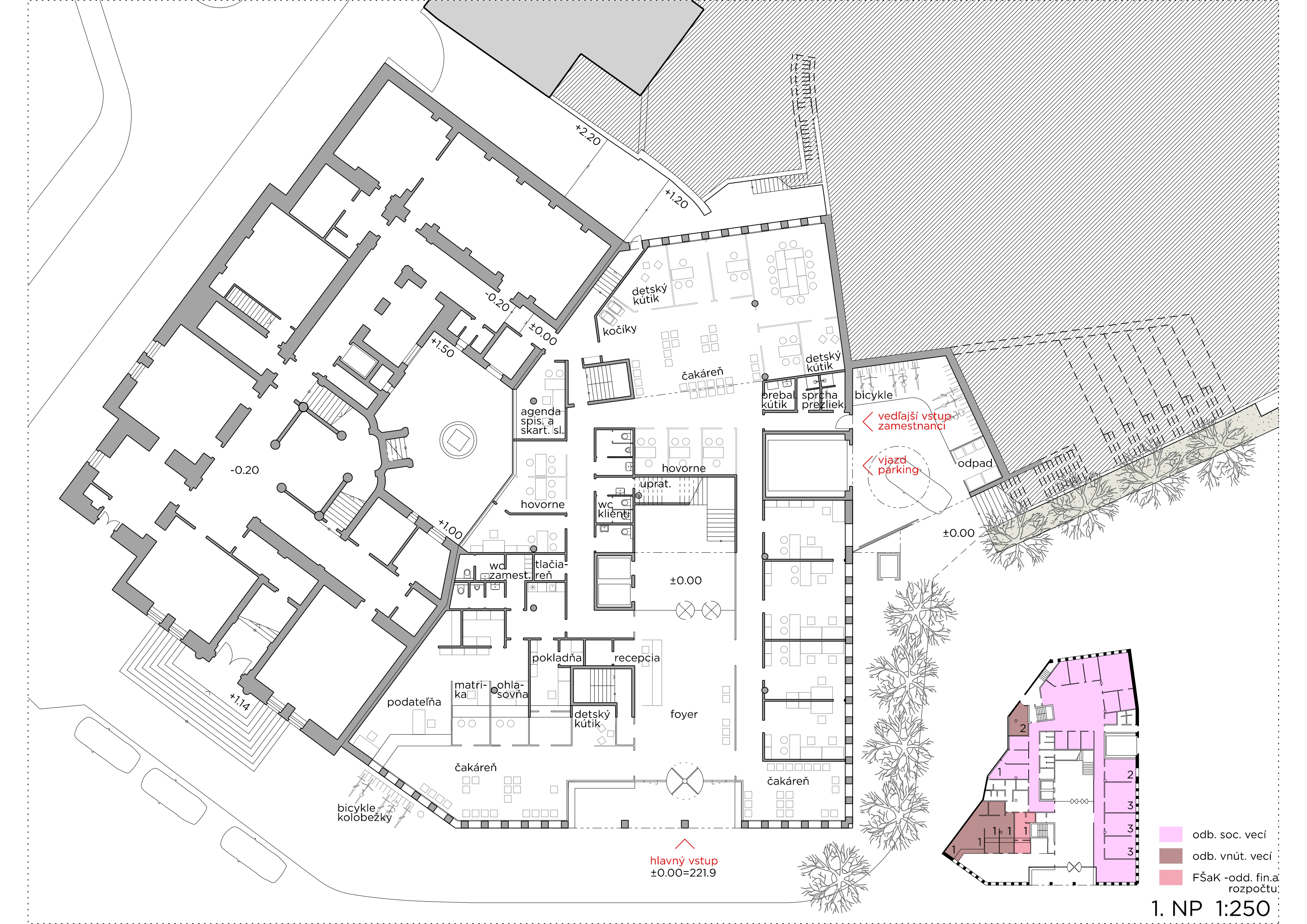
Prístavba Slezskoostravské radnice
Ostrava
súťaž, 2025
Kusý II, Paňák, Kusý III, Kusá-Michalič
Paňáková J., Paňáková,B.,Kubinová, Vass
︎
︎
︎
© 2023 BKPŠ
Running on Cargo