︎
ARCHITEKTI
BKPŠ
KUSÝ — PAŇÁK
work
|
about
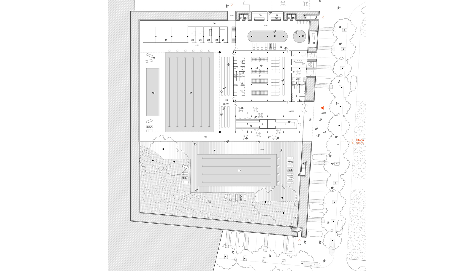
Plaváreň
Ružomberok
súťaž, 3. cena, 2018
Kusý III, Bakyta, Blašková
︎
︎
︎
© 2023 BKPŠ
Running on Cargo