︎
ARCHITEKTI
BKPŠ
KUSÝ — PAŇÁK
work
|
about
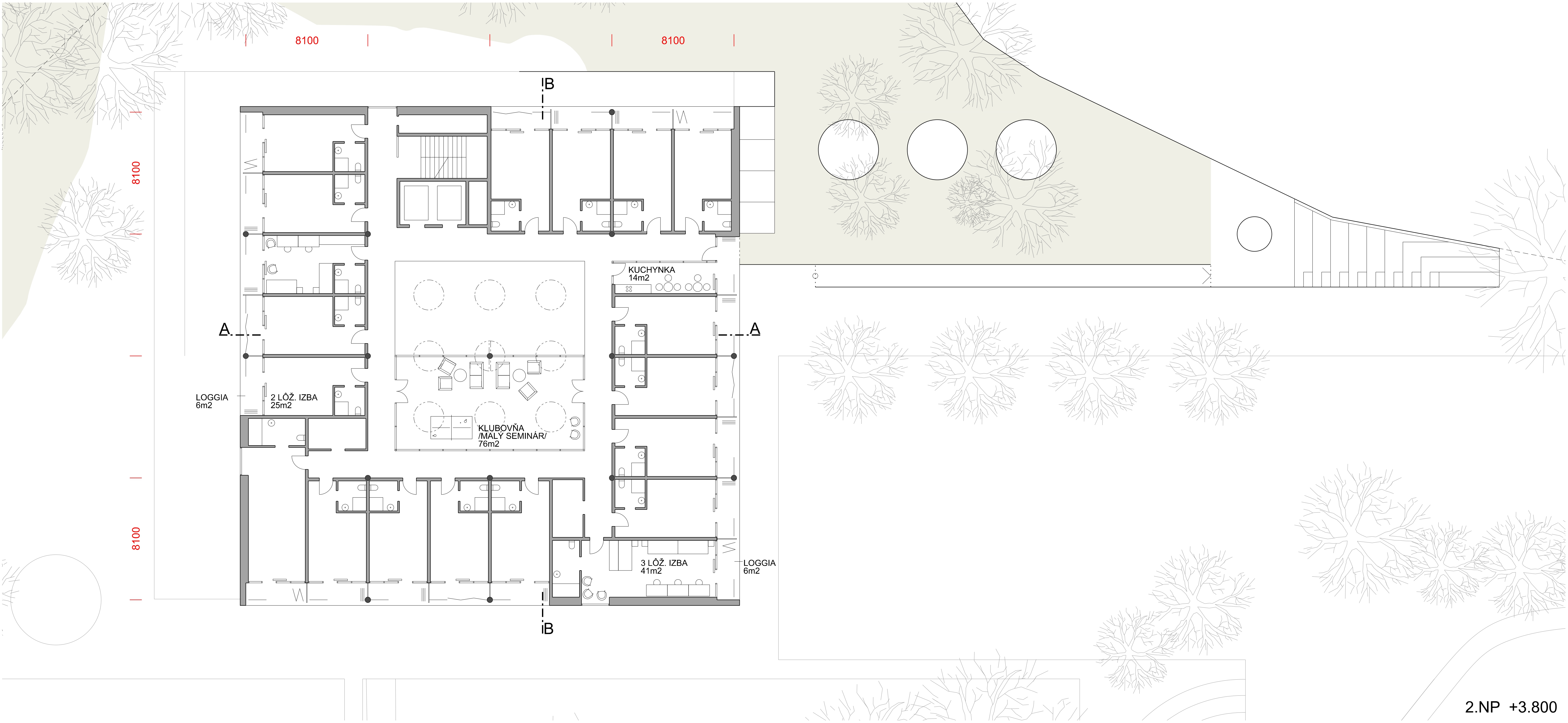
NBS trvalé záložné pracovisko
Kremnica
súťaž, 4. cena 2023
Paňák, Bakyta, Vass, Kusý II, Kusý III
Paňáková J., Paňáková B., Kusá-Michalič, Rell, Kubinová,
︎
︎
︎
© 2023 BKPŠ
Running on Cargo