︎
ARCHITEKTI
BKPŠ
KUSÝ — PAŇÁK
work
|
about
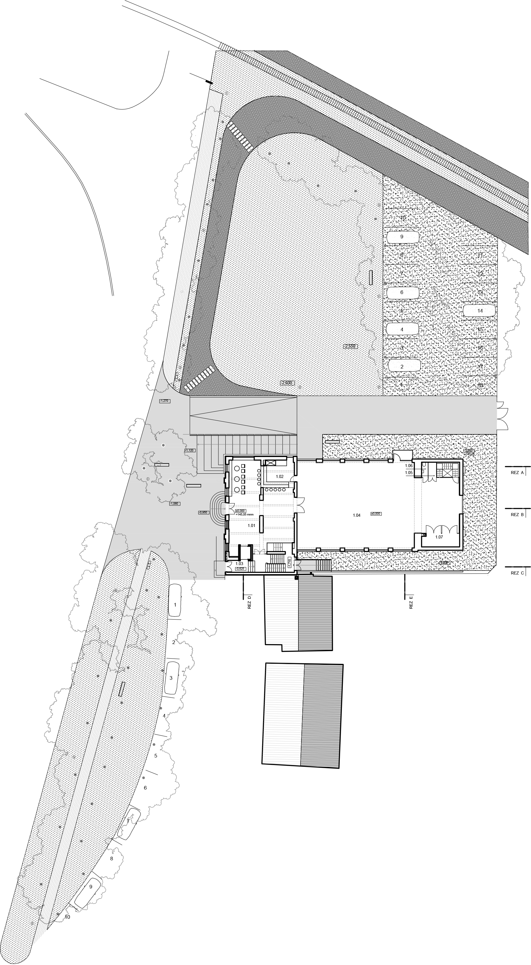
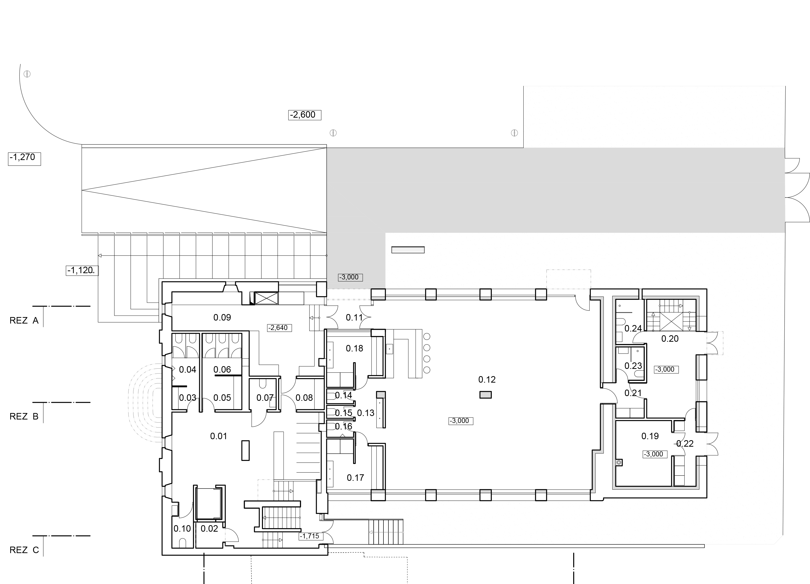
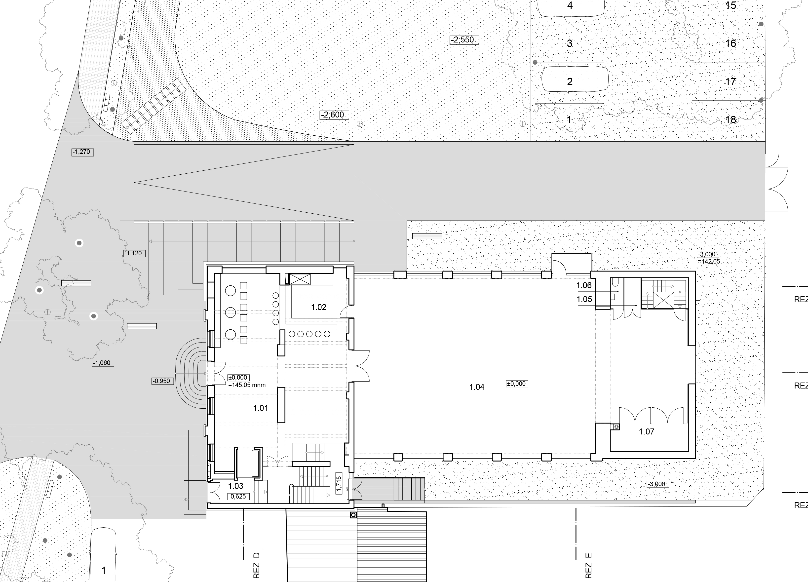
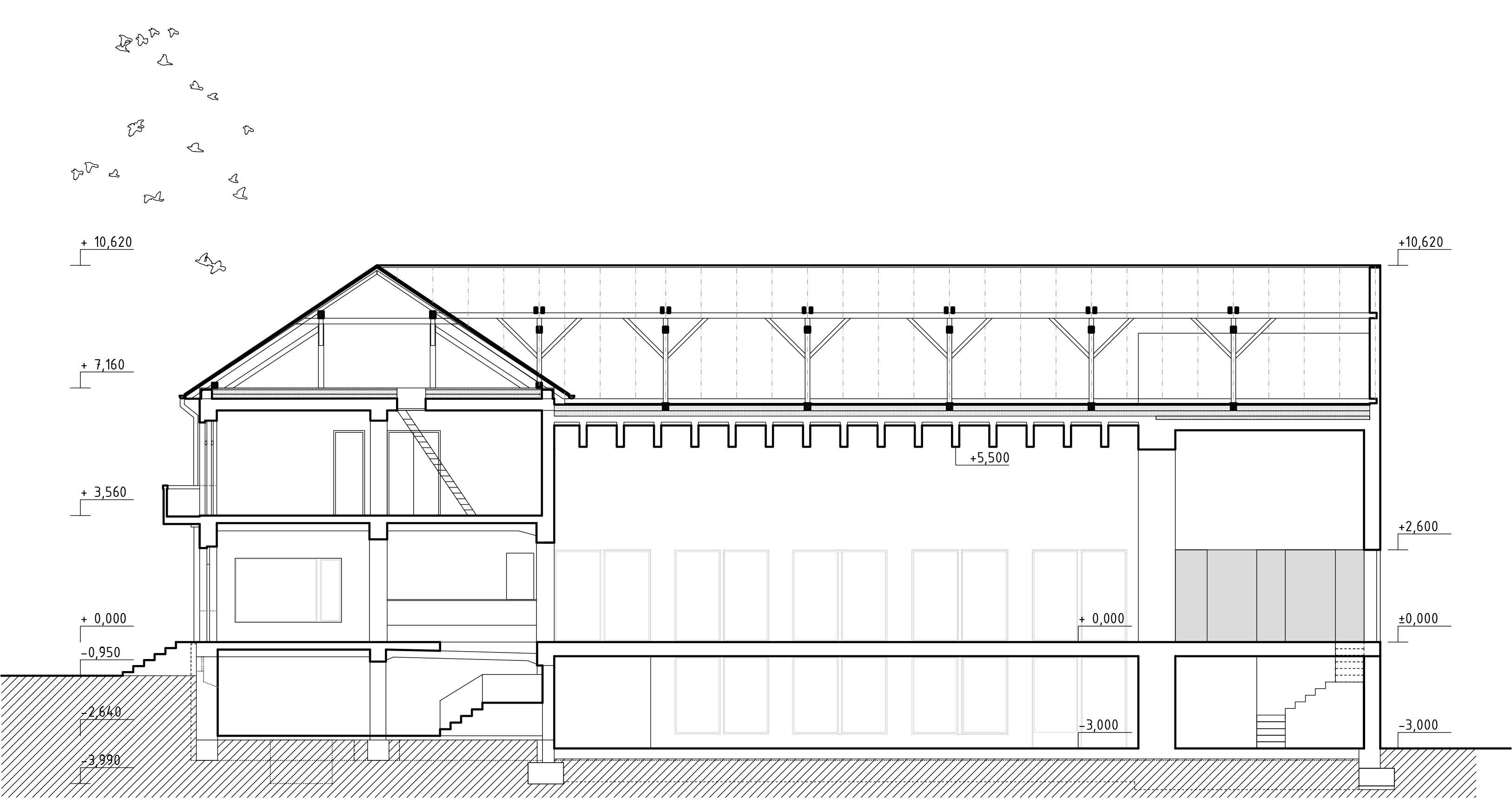
Kultúrne centrum
Leopoldov
súťaž, 1. cena, 2017
Bakyta, Kusý III, Blašková, Krčméryová
︎
︎
︎
© 2023 BKPŠ
Running on Cargo