︎
ARCHITEKTI
BKPŠ
KUSÝ — PAŇÁK
work
|
about
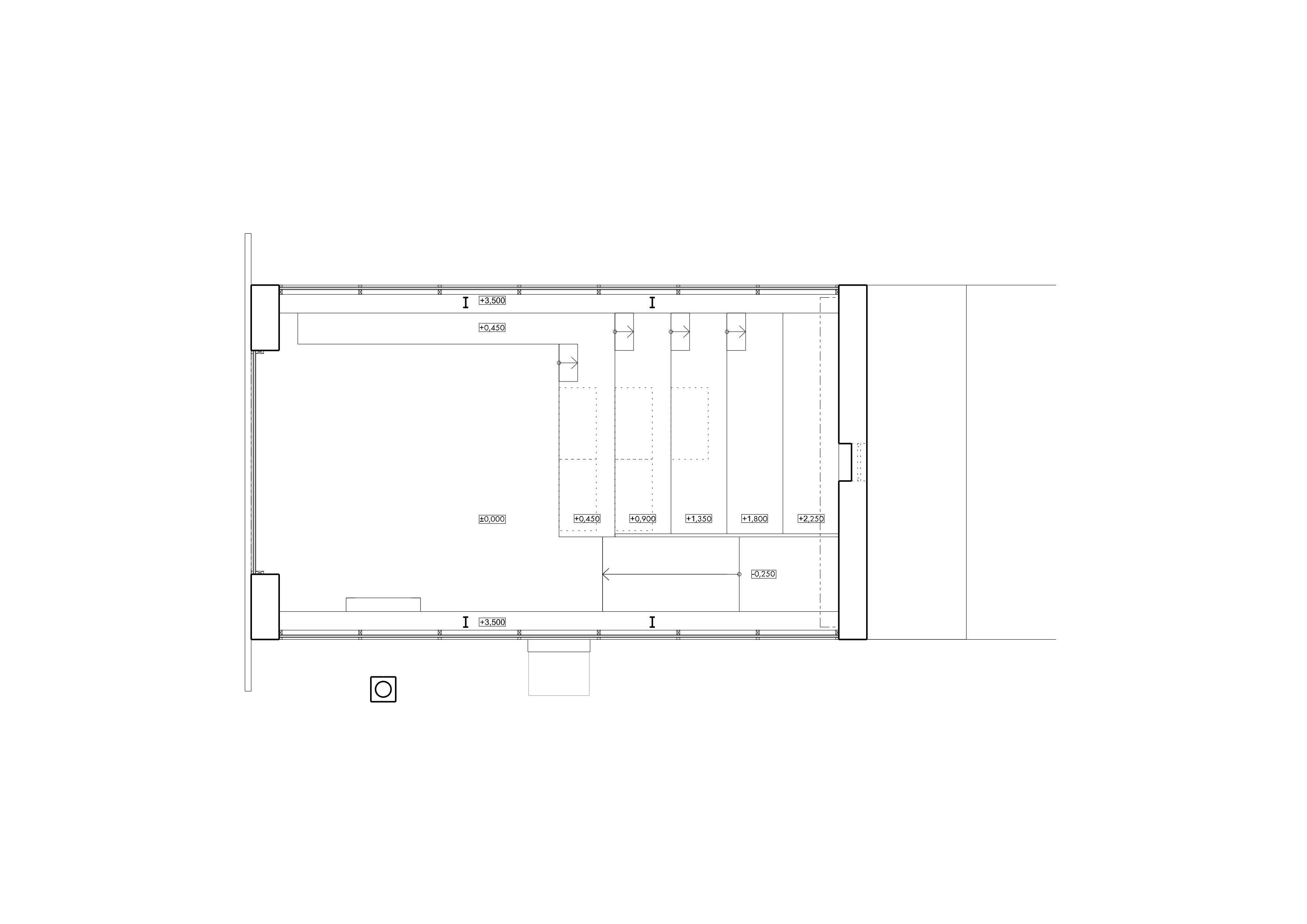
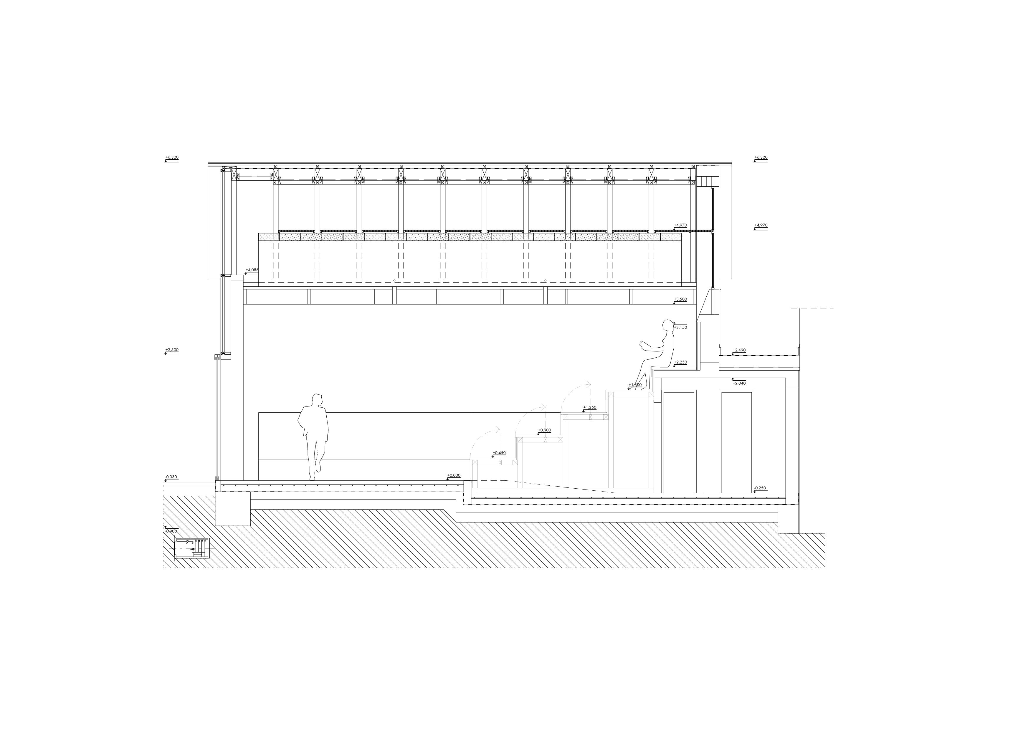
Komunitný dom Kúty
Kúty
štúdia, 2020
Kusý II, Paňák, Paňáková J.
︎
︎
︎
© 2023 BKPŠ
Running on Cargo