︎
ARCHITEKTI
BKPŠ
KUSÝ — PAŇÁK
work
|
about
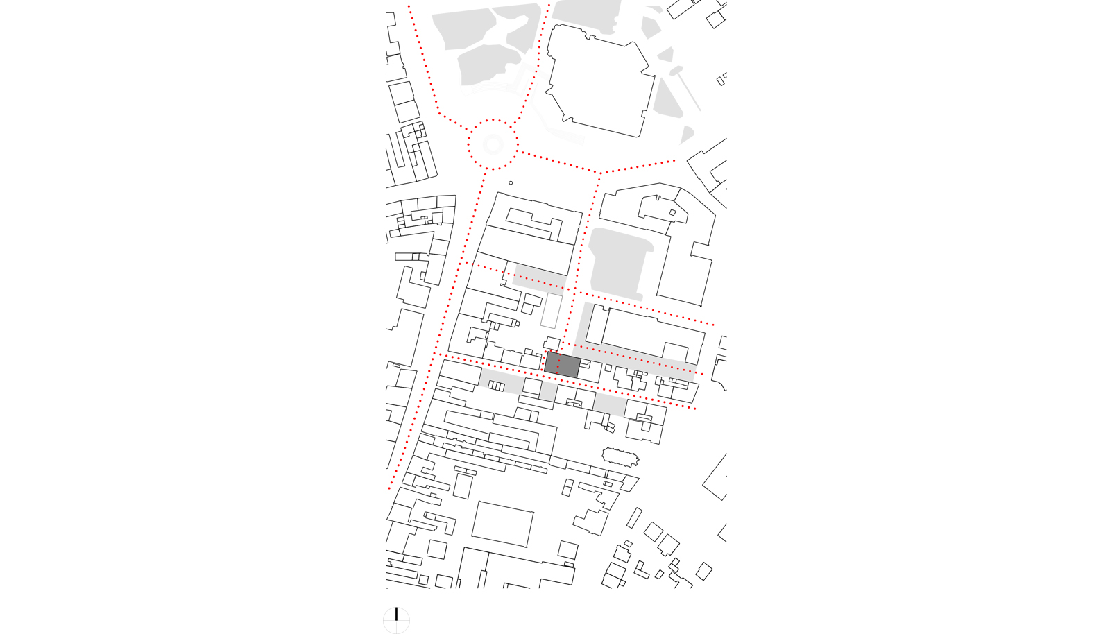
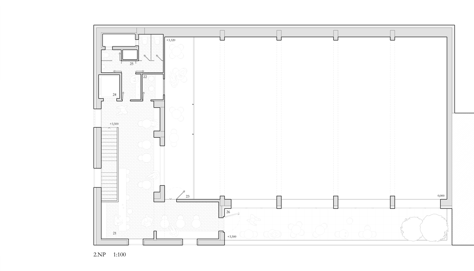
Kino Palace
Nitra
súťaž, 3. cena, 2019
Kusý III, Bakyta, Kuva, Vass
︎
︎
︎
© 2023 BKPŠ
Running on Cargo