︎
ARCHITEKTI
BKPŠ
KUSÝ — PAŇÁK
work
|
about
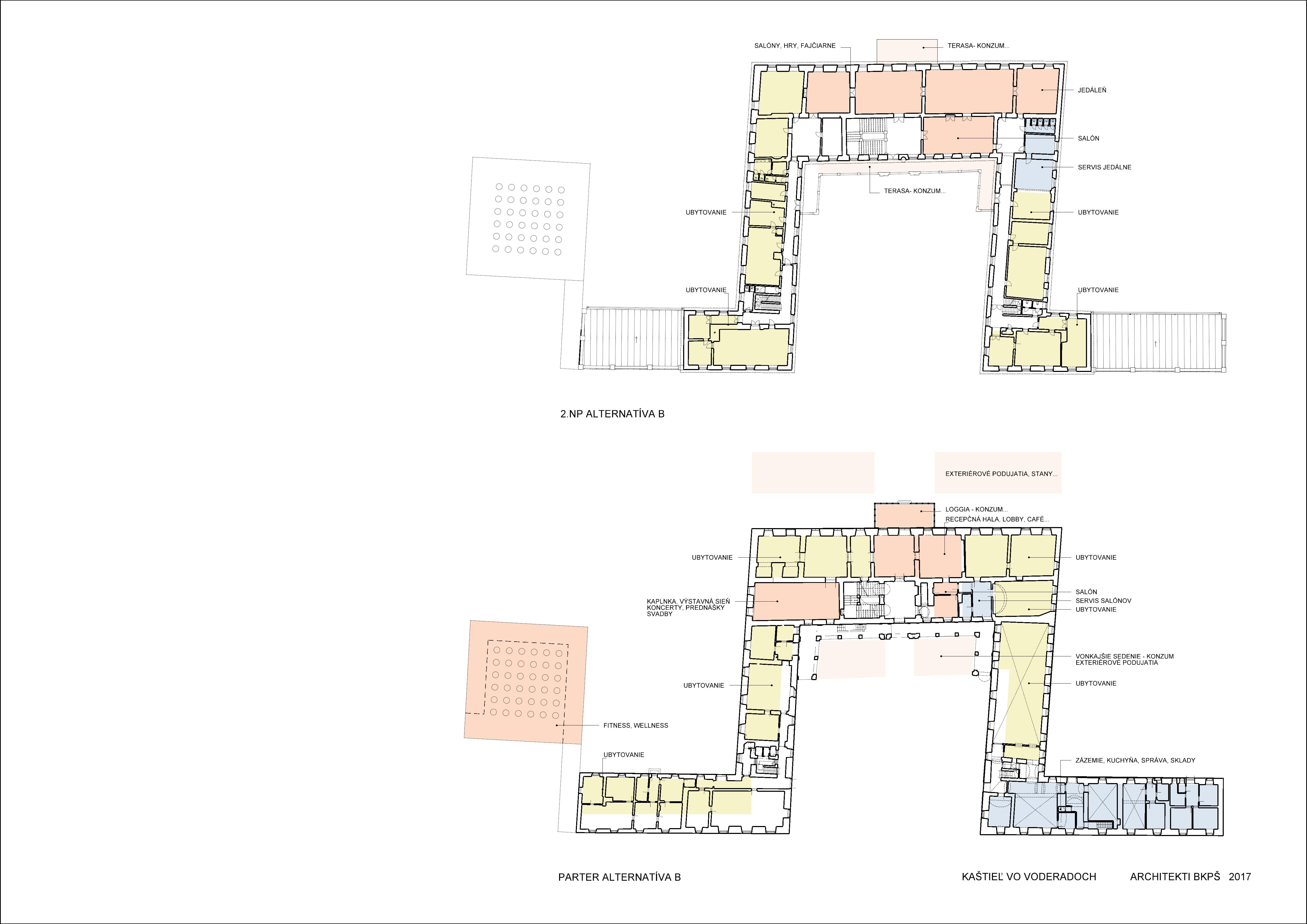
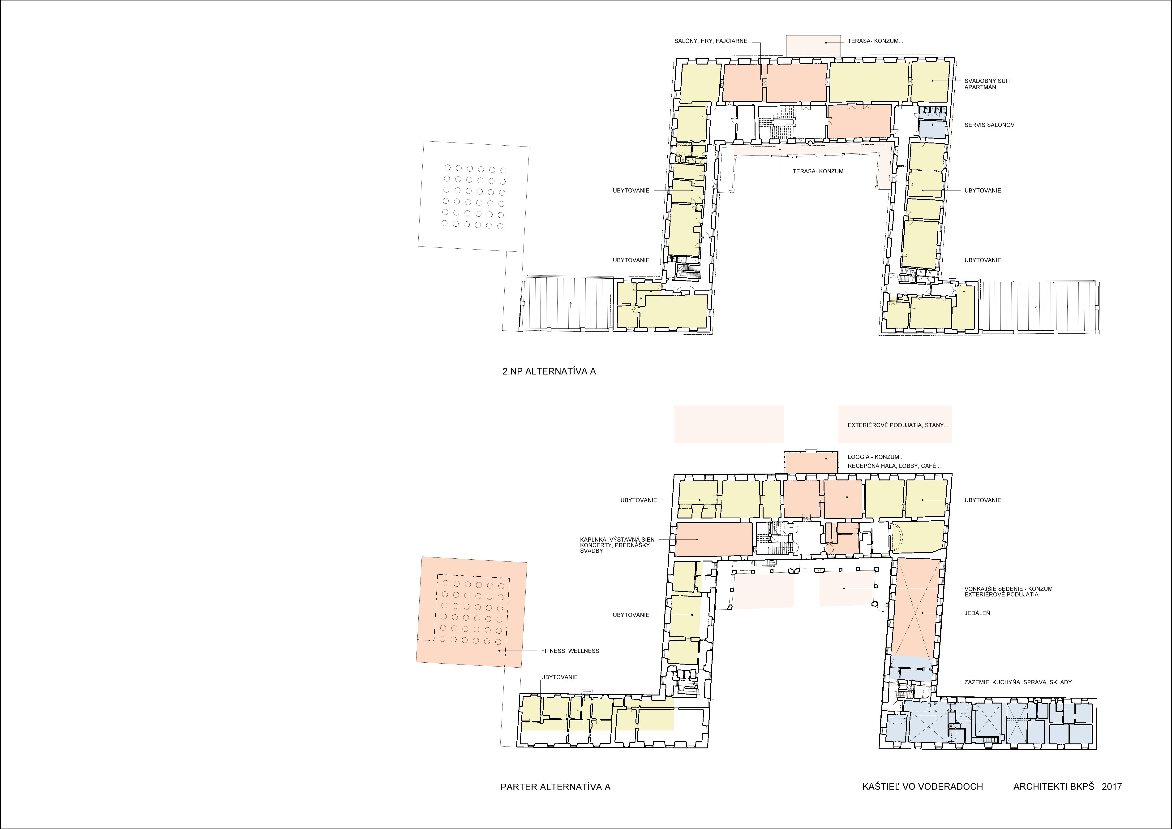
Kaštieľ
Voderady
štúdia, 2017
Kusý II, Paňák, Michalič – Kusá, Bolebruchová, Vass
︎
︎
︎
© 2023 BKPŠ
Running on Cargo