︎
ARCHITEKTI
BKPŠ
KUSÝ — PAŇÁK
work
|
about
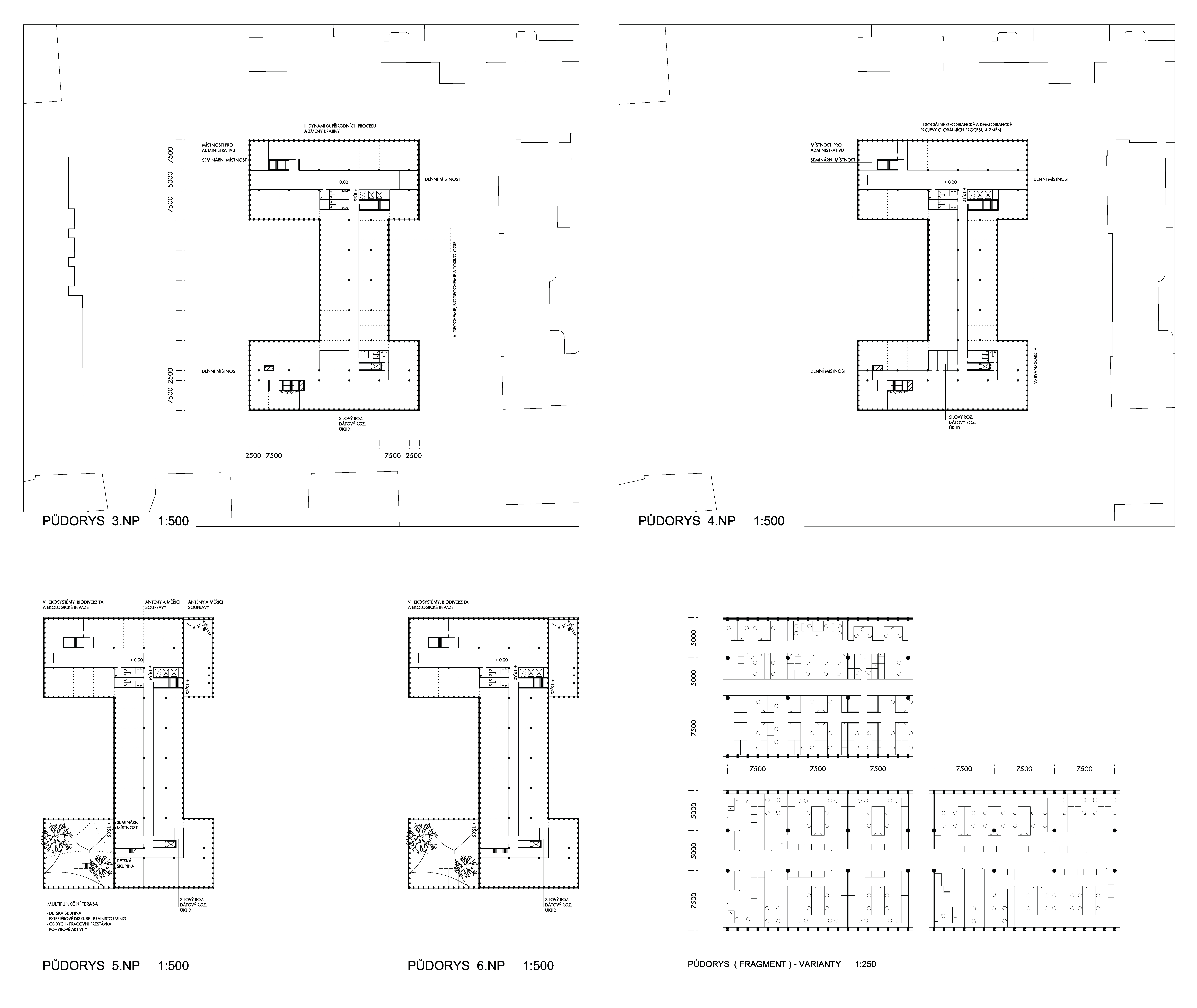
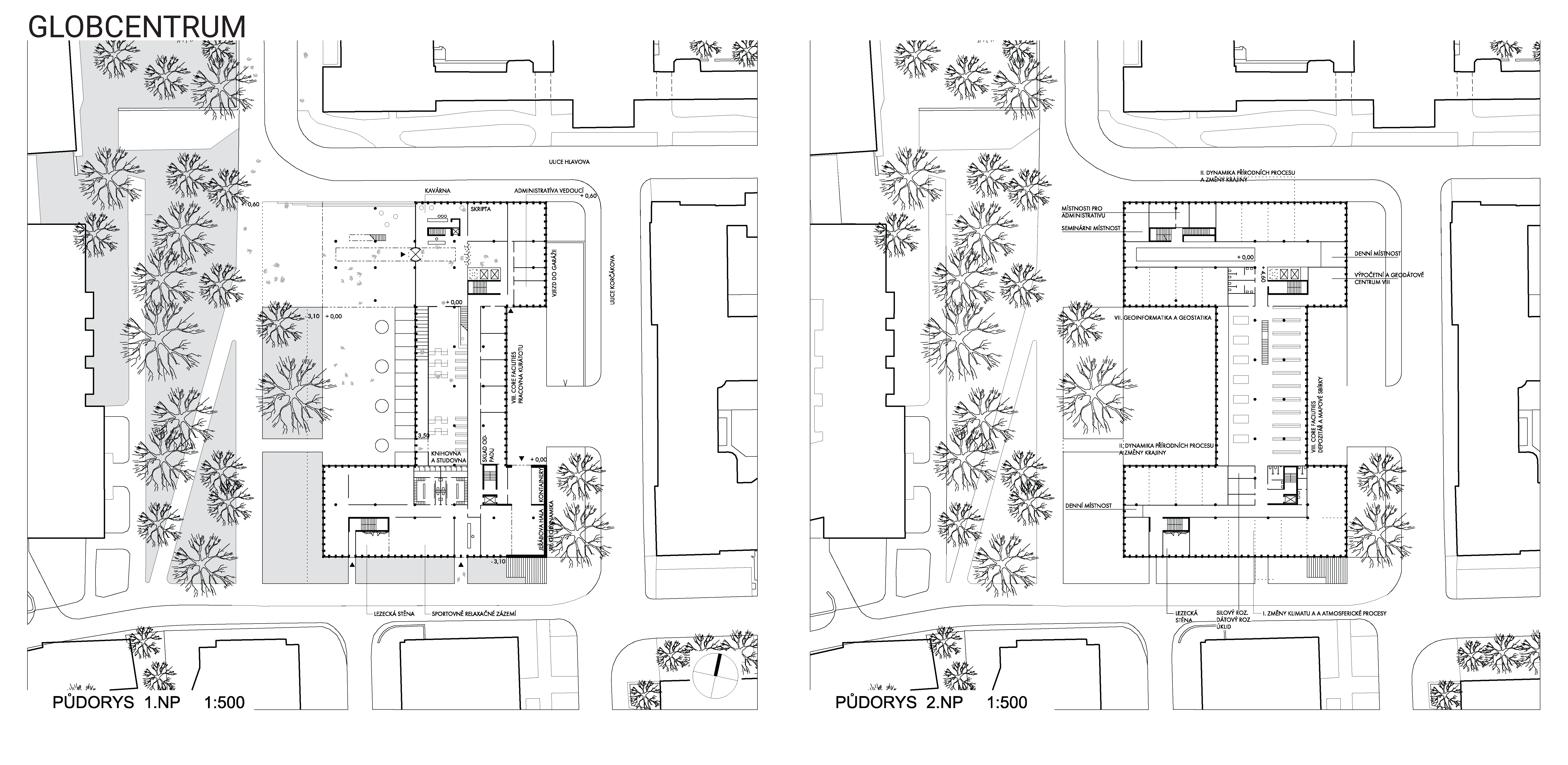
Kampus Albertov
Praha
súťaž, 2016
Kusý II, Paňák, Kusý III, Michalič – Kusá, Bakyta
︎
︎
︎
© 2023 BKPŠ
Running on Cargo