︎
ARCHITEKTI
BKPŠ
KUSÝ — PAŇÁK
work
|
about
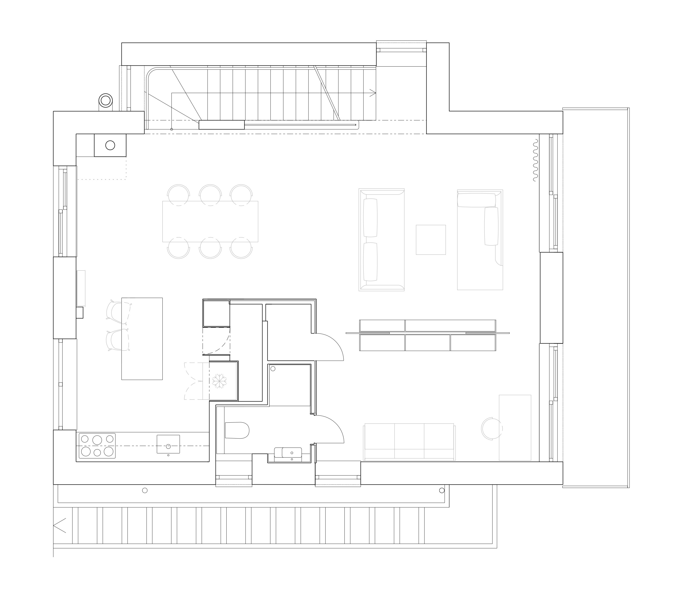
Interiér rd
Bratislava
realizácia, 2021
Paňák, Michalič – Kusá, Paňáková J.
︎
︎
︎
© 2023 BKPŠ
Running on Cargo