︎
ARCHITEKTI
BKPŠ
KUSÝ — PAŇÁK
work
|
about
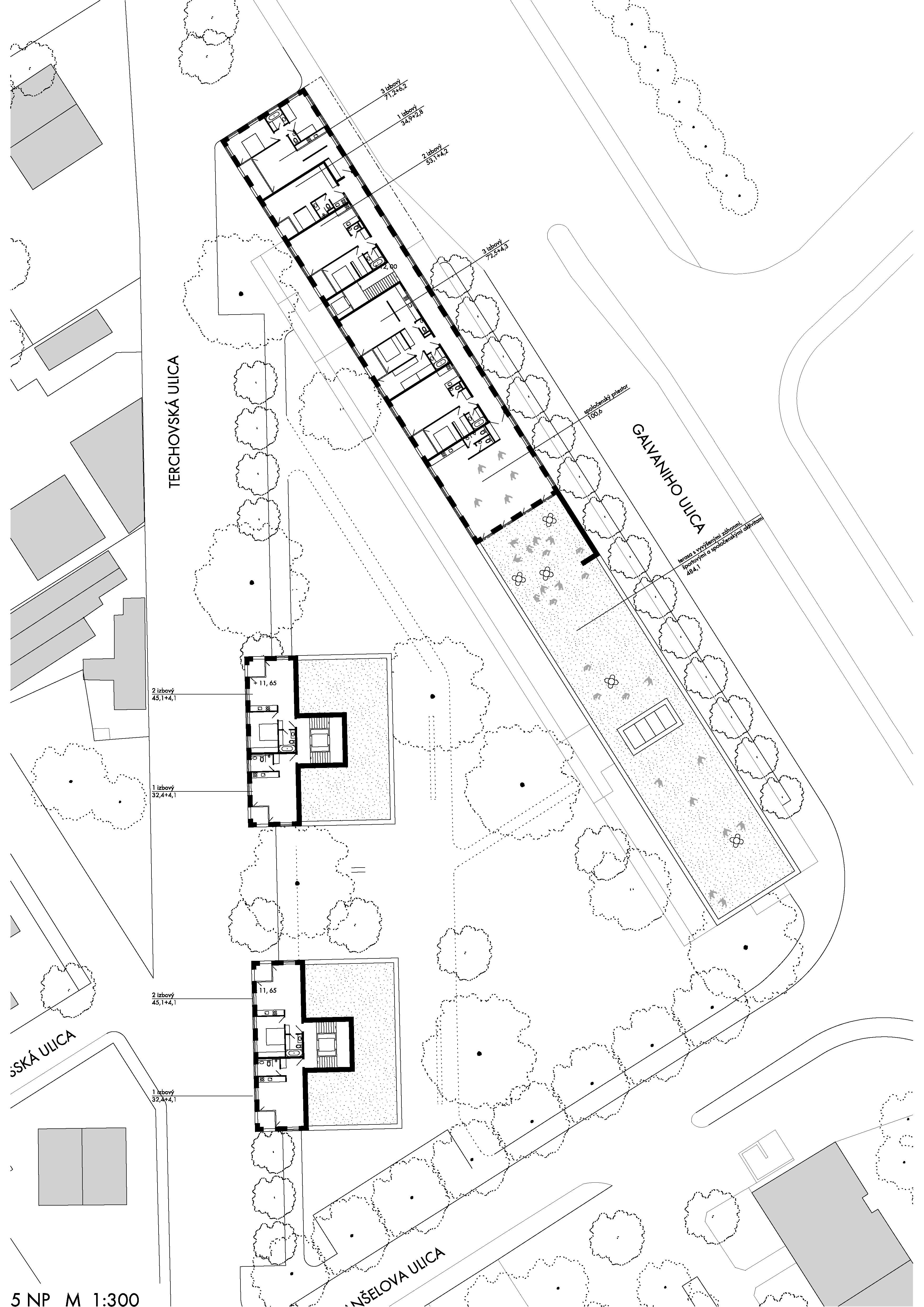
Bytový súbor Terchovská
Bratislava
súťaž, 2020
Kusý II, Paňák, Kusý III, Bakyta
︎
︎
︎
© 2023 BKPŠ
Running on Cargo