︎
ARCHITEKTI
BKPŠ
KUSÝ — PAŇÁK
work
|
about
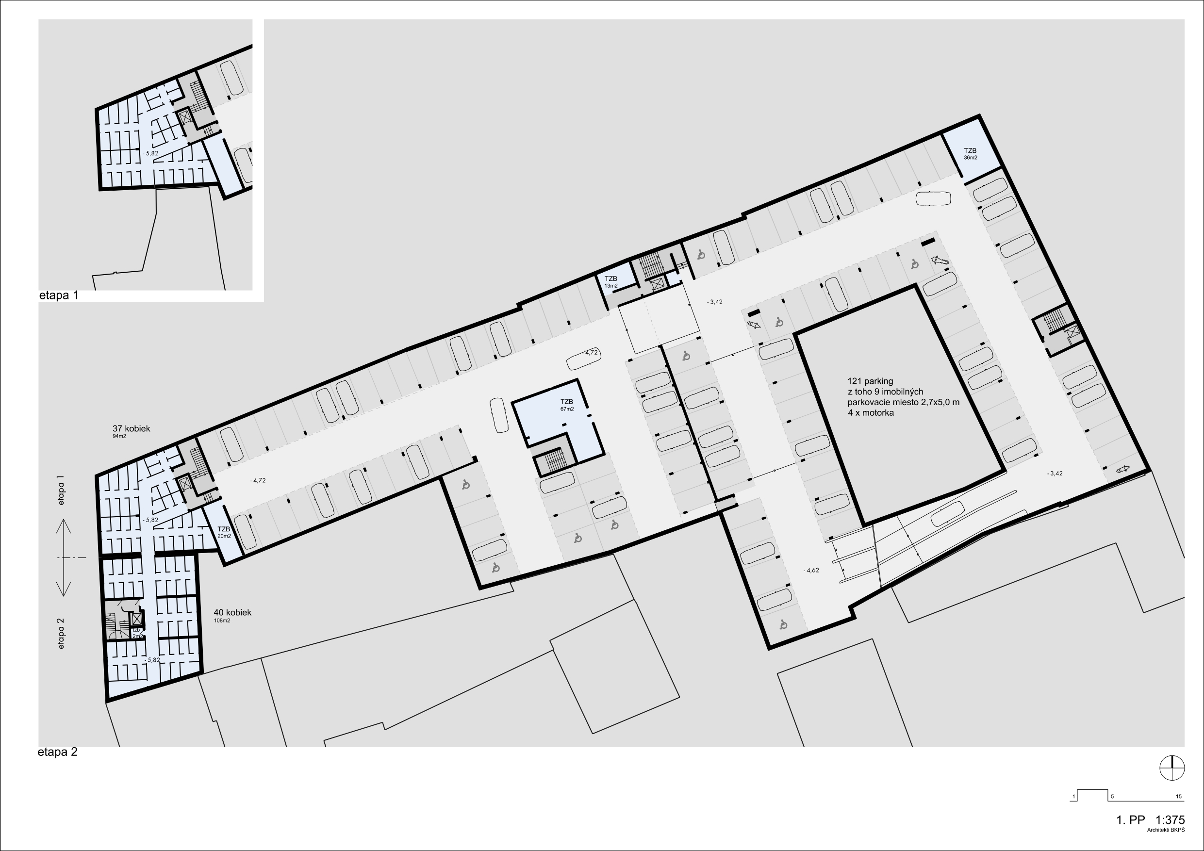
Bytový dom s polyfunkciou
Trnava
súťaž, 1. cena, 2022
štúdia 2023
Kusý II, Paňák, Kusý III, Vass, Bakyta
︎
︎
︎
© 2023 BKPŠ
Running on Cargo