︎
ARCHITEKTI
BKPŠ
KUSÝ — PAŇÁK
work
|
about
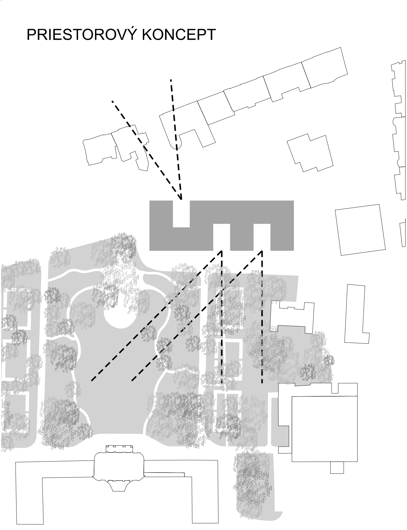
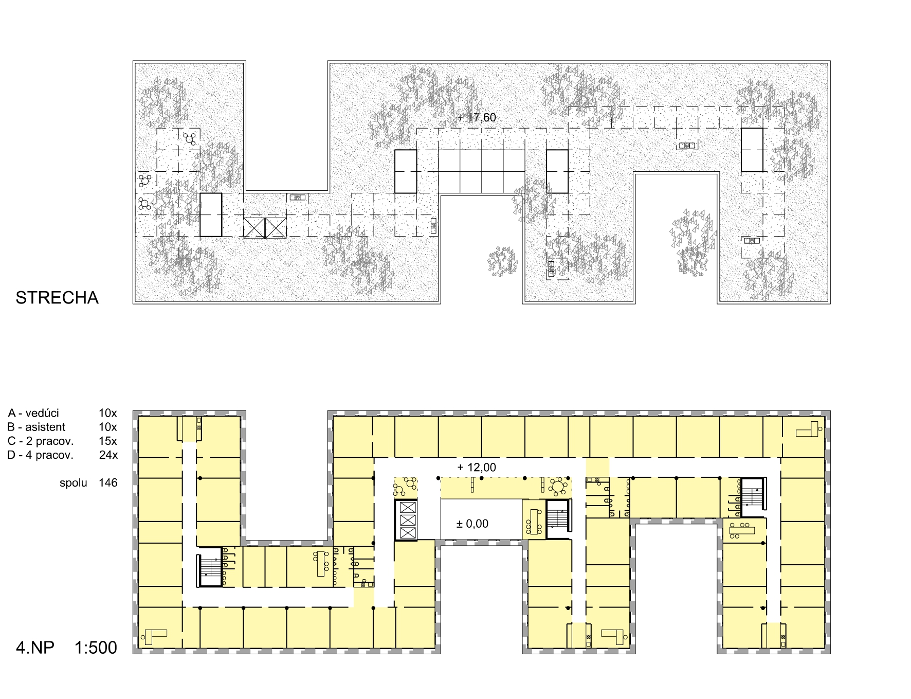
Administratívna budova Úradu vlády SR
Bratislava
súťaž, 2023
Kusý II, Kusý III, Vass, Paňák, Bakyta
Kusá-Michalič, Rell, Kubinová, Paňáková J., Paňáková B., Humajová, Zeman
︎
︎
︎
© 2023 BKPŠ
Running on Cargo